Проект межевания территории западного жилого района города Южно-Сахалинска в границах: ул. Сахалинская - ул. Вокзальная - пр. Победы - ул. Западная
Проект планировки территории города Южно-Сахалинска в границах: ул. Деповская - ул. Тихая - ул. Моторная - ул. Западная
Четыре проекта планировки территории и проекта межевания территории Сахалинской области
Проект планировки и проект межевания территории квартала В г. Южноуральска
Документация по планировке территории (проект планировки и проект межевания территории) с. Уютное
Проект планировки и проект межевания территории, ограниченной улицами: ул. Генерала Тихонова - ул. Московская - ул. Красноярская - просп. Космонавтов в г. Черногорск
Внесение изменений в проект планировки территории и проект межевания территории микрорайонов №4 и №5 города Троицка
Документация по планировке территории, ограниченной улицами Губкина, Мира, 1 Речка г. Тарко-Сале Пуровского района
Документация по планировке территории (проект планировки территории и проект межевания территории) с целью реконструкции объекта регионального значения "Реконструкция ресторанно-гостиничного комплекса"
Два проекта по планировке территории г. Симферополь
Документация по планировке территории (проект планировки территории и проект межевания территории), расположенной по ул. Гузакова в г. Сим
Проект планировки, проект межевания территории Северо-западной коммунальной зоны в районе улицы Новая г. Радужный
Документация по планировке территории (проект планировка, проект межевания) центральной части индивидуальной жилой застройки г. Ноябрьск
Внесение изменений в документацию по планировке территории в районе Центральном г. Норильска
Три проекта межевания территории г. Нефтеюганска
Проект планировки и проект межевания территории в г. Невельск
Документация о внесении изменений в проект межевания территории города Магнитогорска, утвержденный постановлением администрации города от 31.10.2017 № 12977-П, в границах улиц Тимирязева, Бестужева, Ленинградская
Проект планировки и проект межевания территории города Магнитогорска в границах улиц Песчаная, Цементная, Войкова
Документация о внесении изменений в проекте планировки территории города Магнитогорска, утвержденный постановлением администрации города от 02.02.2023 №896-П, в границах просп. Карла Маркса, ул. Первомайская, просп. Ленина и ул. Уральская
Проект планировки территории города Магнитогорска в районе улиц Декабристов, Полевая
Проект планировки и проект межевания территории города Магнитогорска в границах ул. Гагарина, пр. Ленина, проезд Саратова, пр. Карла Маркса
Проект планировки и проект межевания территории города Магнитогорска в границах 95-96 кварталов (ул. Гагарина, просп. Карла Маркса, ул. Дружбы, ул. Суворова)
Проект планировки и проект межевания территории земельного участка с кадастровым номером 02:44:210801:5269, расположенного по адресу: Республика Башкортостан, р-н Стерлитамакский, с/с Отрадовский, с. Мариинский
Проект планировки территории 11 микрорайона г. Курчатова Курской области
Проект планировки территории, ограниченной ул. Лакина, ул. Толмачевской, границей кадастрового квартала 33:22:023013, ул. 8-я Линия, СНТ АО ВТЗ (№ 9 АО ВТЗ), ул. Зои Космодемьянской в г. Владимире
Подготовка изменений в проект планировки территории и проект межевания территории квартала 27 города Благовещенска
Проект планировки и проект межевания территории кадастрового квартала 59:32:0180005 с. Бершеть Пермского муниципального округа Пермского края
Три проекта планировки и межевания территории в границах Белгородского района
Двенадцать проектов планировки и межевания территории в разных населенных пунктах городского округа Ялта
Внесение изменений в проект планировки и проект межевания села Дальнее
Внесение изменений в документацию по планировке территории в составе проекта межевания территории в границах территориальной зоны О-1 "Общественно-деловая зона центра города" в г. Чайковский
Внесение изменений в проект планировки и межевания территории промзона "Южная"
Проект планировки и проект межевания территории села Старорусское городского округа "Город Южно-Сахалинск"
Проект межевания жилых кварталов в г. Москва, г. Троицк
Восемь проектов планировки территории и проектов межевания территории в г. Ялта
Четыре проекта планировки территории и проекта межевания территории в г. Южно-Сахалинск
Документация по планировке территории 119 микрорайона г. Череповца
Документация по планировке территории "Комплексная реновация центральной прибрежной территории в городе Холмске (набережная в Холмске)"
Внесение изменений в проект планировки и проект межевания территории микрорайона "Солдатское поле" в границах улиц Гагарина - Лермонтова города Ханты-Мансийска
Документация проекта планировки территории и проекта межевания территории северо-западной части города Ханты-Мансийска
Проект планировки и проект межевания части территории, расположенной в границах кадастровых кварталов 90:11:220301, 90:11:220103, 90:11:000000 Уютненского сельского поселения
Документация по планировке территории для строительства объекта "Газопровод внутрипоселковый в с. Визинга, Кольель, Первомайский, Куниб, Шорсай, Межадор, Малешор, Сысольского района"
Проект планировки и проект межевания территории ЦЖР в границах улиц Сергея Безверхова, Республики, Энгельса и реки Бардыковка в г. Сургуте
Проект межевания территории кварталов КК1А, КК2А, КК3А, КК2, КК1 в г. Сургуте
Документация по планировке территории в г. Ростов-на-Дону
Документация по планировке части территории общественно-деловой зоны (О1) в границах ул. Ленина и территории Больничного комплекса г. Муравленко
Проект планировки и проект межевания части территории, расположенной в границах кадастрового квартала 90:11:150101, Молочненского сельского поселения
Документация по планировке территории (проект планировки территории и проект межевания территории) с целью размещения объекта регионального значения "Территория перспективного развития комплексной жилой застройки в Симферопольском районе
Проект планировки и проект межевания территории, расположенной по адресу: Челябинская область, город Магнитогорск, поселок Изумрудный
Четыре проекта планировки территории и проекта межевания территории в городе Магнитогорск
Документация по планировке территории (проект планировки и проект межевания), ограниченной улицами Студеновская, им. 9-го Января, Елецкая в городе Липецке
Документация по планировке территории города Магнитогорска по шоссе Западное от улицы Зеленая до улицы 50-летия Магнитки с целью размещения линейных объектов "Реконструкция магистрального водовода ДУ 600 мм от камеры №6 до Янгельских резервуаров
Документация по планировке территории (проект планировки территории и проект межевания территории), находящейся по адресу: Республика Крым, г. Евпатория, пр-кт Победы, южнее мкрн Спутник-2
Четыре проекта планировки территории и проекта межевания территории в г. Губкинский
Документация по планировке территории (в составе проекта планировки территории и проекта межевания территории) линейного объекта «Реконструкция системы газоснабжения войсковой части 42685, г. Брянск-18»
Четыре проекта планировки территории в городе Владивостоке
Документация по планировке территории, межеванию территории и выполнению инженерных изысканий в границах между ул. Мартовская и ул. Брусничная в городском поселении "Рабочий поселок Ванино"
Документация по планировке территории в части разработки проекта планировки территории и проекта межевания территории в районе дома № 78 по ул. Мичурина городского округа Большой Камень
Проект планировки и проект межевания территории с. Ближняя Игуменка, площадью 521,36 га, расположенного в границах Новосадовского сельского поселения
Документация по планировке территории (проект планировки территории и проект межевания территории с целью размещения объекта регионального значения "Территория перспективного развития комплексной жилой застройки" Бахчисарайский район, г. Бахчисарай
Проект планировки и проект межевания территории для планирования к формированию земельного участка с кадастровым номером 74:03:1019015:110 и части земельного участка с кадастровым номером 74:03:1019015:3 для многоэтажной жилой застройки в г. Аша
Комплексный проект по градостроительному обоснованию установления красных линий города Первоуральск, проект планировки "Красных линий" города Первоуральск
Пять проектов по планировке территории в городе Челябинск
Пять проектов по планировке территории в г. Чайковский
Четыре проекта планировки и межевания территории города Нефтеюганска
Документация по планировке территории (проект планировки и проект межевания территории в районе 30-й автодороги) г. Чебоксары
Документация по планировке территории для строительства футбольного стадиона со зрительскими трибунами в г. Томске
Проект планировки территории, ограниченной ул. им. Кутякова И.С., границами земельных участков с кадастровыми номерами 64:48:030346:4, 64:48:030346:59, привокзальной площадью, ул. Аткарской в Кировском районе города Саратова с проектом межевания
Два проекта планировки и проекта межевания территории в Пионерском сельском поселении
Три проекта планировки и проекта межевания территории в Нефтеюганском районе
Проект планировки территории с проектом межевания в его составе в границах ул. А. Суворова (район ул. Немировича-Данченко-ул. Качалова) в городе Калининграде
Четыре проекта планировки территории и проекта межевания в г. Благовещенск
Два проекта по планировке территории в г. Челябинск Челябинской области
Три проекта по планировке территории в г. Чайковский
Документация по планировке территории и проект межевания территории в городском округе город Норильск в части жилой застройки территории, ограниченной улицей Орджоникидзе, Ленинский проспект, улицей Дзержинского, улицей Комсомольская
Проект планировки и проект межевания территории, предназначенной для размещения линейного объекта - улично-дорожной сети в микрорайоне Калиновском г. Екатеринбурга
Два проекта планировки территории и проекта межевания территории в г. Сургуте
Проект внесения изменений в проект планировки и проект межевания территории в северо-восточной части города Нефтеюганска (ограниченная объездной дорогой, проездом Озерный)
Проект планировки и проект межевания территории в районе ТРК "Тарелка" в г. Златоусте
Подготовка проекта внесения изменений в документацию по планировке территории (в составе проект планировки и проект межевания территории) площадью 28,0, расположенный по адресу: г. Евпатория, р-н Универсам, ул. Интернациональная - пр. Победы - ул. 9 Мая
Два проекта планировки территории и проекта межевания территории г. Губкинского
Три проекта по планировке территории и проекта межевания территории в г. Владивостоке
Внесение изменений в проект межевания территории квартала, ограниченного бульваром Ибрагимова, улицами Пархоменко, Краснодонской и Цюрупы в Советском районе г. Уфа
Три проекта планировки и межевания территории в г. Магнитогорске
Шесть проектов планировки и межевания территории в разных населенных пунктах Республики Крым
Документация по планировке территории городского округа город Октябрьский Республики Башкортостан, расположенной южнее ул. Окружная, между невтяными скважинами №1811 и №2119 с целью размещения индивидуального жилищного строительства
Документация по планировке территории (проект планировки и проект межевания) по объекту: "Инженерное обеспечение района ул. Герцена г. Новороссийска.
Документация по планировке территории для строительства объекта "Газопровод внутрипоселковый в сельском поселении "Корткерос"
Документация по планировке территории линейного объекта "Автомобильная дорога в посёлке городского типа Харп"
Проект внесения изменений в проект планировки и проект межевания территории в районе СУ-62 в городе Нефтеюганск
Проект внесения изменений в проект межевания территории города Нефтеюганска, вдоль улицы Мамонтовская, напротив микрорайонов 8А, 12, 13, 14, 17А
Проект внесения изменений в проект планировки и проект межевания территории 8А микрорайона в городе Нефтеюганск
Внесение изменений в проект планировки и проект межевания территории микрорайона 10А в городе Нефтеюганск
Проект планировки и проект внесения изменений в проект межевания территории микрорайона 10 города в городе Нефтеюганск
Проект планировки и межевания территории в районе улиц Интернациональная, Шоссейная, Сульфидная города Магнитогорска
Проект планировки и межевания территории города Магнитогорска в границах проспекта Карла Маркса, Завенягина, Ворошилова, Труда города Магнитогорска
Документация о внесении изменений в проект планировки территории в границах улиц Чкалова, Серова, Лермонтова, Полевая, Тихвинский, Шота Руставели города Магнитогорска
Документация о внесении изменений в проект планировки территории в границах улиц 1-ая Наровчатская, тракт Челябинский, Дмитрия Галкина, Нины Пушкарской города Магнитогорска
Проект межевания территории города Магнитогорска в границах улиц Московская, Рылеева, Уральская, Николая Шишка
Проект планировки и межевания территории 149 микрорайона г. Магнитогорска
Проект планировки и межевания территории 148 микрорайона г. Магнитогорска
Проект планировки и межевания территории 144 микрорайона г. Магнитогорска
Проект планировки и межевания территории 109 микрорайона г. Магнитогорска
Проект планировки территории, проект межевания территории планировочного квартала 01:12:02 в г. Новый Уренгой
Пять проектов планировки в республике Крым
Документация по внесению изменений в прроект планировки территории бывших поселков Радужный, Приуральский
Шесть проектов планировки и межевания территории с целью размещения линейных объектов в г. Магнитогорске
Корректировка проекта планировки и проекта межевания "Застройка микрорайона №35 в г. Сургуте"
Пять проектов межевания территории в городе Сургуте
Семь комплектов документации по планировке территории садоводческих некоммерческих товариществ в Нефтеюганском районе
Проект планировки и проект межевания территории, расположенной в районе п. Застепь (Птичник)
Пять проектов планировки и межевания территории в г. Магнитогорске
Проект планировки территории, проект межевания территории микрорайона №11 города Губкинского
Проект планировки территории и проект межевания территории квартала №1 планировочного подрайона 2.2.4. жилой район - "Антенное поле"
Три комплекта документации по планировке территории Партизанском городском округе
Проект планировки и проект межевания территории, расположенной в районе п. Застепь и п. Ивановка
Документация по планировке территории и межеванию земельных участков в районе центрального города Норильска
Проект планировки и проект межевания территории части квартала №5 планировочного подрайона 1.2.3. микрорайон смешанной жилой застройки - "Вилюйский"
Три проекта планировки и межевания территории в Нефтеюганском районе
Три проекта о внесении изменений в проект межевания территории городского поселения Пойковский
Проект планировки и межевания территории Прибрежной зоны г. Нефтеюганска
Проект планировки, проект межевания территории микрорайона Ямальский в г. Муравленко
Проект планировки, проект межевания территории индивидуальной жилой застройки 4А микрорайона, расположенной в границах улиц Солнечная, Минская, Кольцевая, Пионерская г. Лангепаса
Проект планировки и межевания территории г. Магнитогорска в границах улиц Советская, Галиуллина, Доменщиков
Проект планировки и межевания территории 147 микрорайона г. Магнитогорска
Проект планировки и межевания территории г. Магнитогорска в границах пр. Ленина, ул. Марджани, ул. Южный переход
Проект планировки и межевания территории 137 микрорайона г. Магнитогорска
3 проекта планировки и межевания территории в г. Сургут
Проект планировки и межевания территории применительно к территории микрорайона "Полевой" села Агаповка
3 проекта планировки и межевания садоводческих некомерческих товариществ Нефтеюганского района: "Восход", "Север", "Сибирь"
Проект внесения изменений в документацию по планировке территории, ограниченной улицами Кудряшова, Генерала Хлебникова, Шубиных в г.Иваново
Проект планировки и межевания территории земельного участка в г. Евпатория, участок Новый, ГСП-2
Внесение изменений в проект планировки территории города Нефтеюганска (красные линии)
4 комплекта документации по планировке территории в г. Ростов-на-Дону
Проект планировки и межевания территории микрорайона №14 Ленинск-Кузнецкого городского округа
Проект планировки территории VII Верхние Печеры и проект межевания по улице Нижне-печерская в Нижегородском районе города Нижнего Новгорода
Документация по планировке территории малоэтажной и индивидуальной жилой застройки ориентировочной площадью 77 га на территории Трудовского сельского поселения
Документация по планировке территории в городе Уссурийске
Документация по планировке территории, расположенной по ул. Майская в городском округе город Воронеж
Проект планировки и проект межевания территории, ограниченной улицами: Кечил-Оола - Калинина - Островского - Лопсанчапа городского округа "Город Кызыл"
Проект планировки и проект межевания территории мкрн "Иркутская" городского округа "Город Кызыл"
Проект планировки и межевания территории в г. Южно-Сахалинск
2 проекта планировки и межевания кварталов № 11, 13 в г. Новодвинске
3 проекта планировки и межевания садоводческих некомерческих товариществ Нефтеюганского района: "Радамир", "Хуторок-1", "Механизатор"
Внесение изменений в проект планировки и проекта межевания территории, расположенной южнее жилого района Первооктябрьский
Проект планировки и проект межевания территории города Магнитогорска в районе СНТ "Горняк", СНТ" Зеленая долина"
Проект планировки и проект межевания территории города Магнитогорска в районе СНТ "Машиностроитель-2", СНТ "Садко"
Документация о внесении изменений в проект планировки территории жилых зон в левобережной части города Магнитогорска и проекта межевания территории, севернее СНТ Горняк
Схема территориального планирования муниципального образования Нефтеюганский район
Проект планировки и межевания территории ограниченной объездной дорогой, ул. Мира, ул. Жилая в г. Нефтеюганск
Проект планировки и межевания территории в северо-восточной части г. Нефтеюганска (район лыжной базы)
Проекты планировки и межевания территории в г. Саки
Проект планировки и межевания части территории кварталов №46А и №45Б, квартала №46Б, части территорий ул. Интернациональной от ул. Раимкулова до ул. Новосибирской, 6 улицы жилого района Восточный в г. Нягань
Проект планировки и межевания части территории жилого района "Восточный", примыкающей к переулку Свердловскому города в г. Нягань
Проект планировки и межевания территории микрорайона №10 жилого района Центральный в г. Нягань
Проект планировки и межевания территории 16 микрорайона в г. Когалым
Проект планировки и межевания территории под индивидуальное жилищное строительство в г. Когалым
Документация по планировке территории города Магнитогорска в границах просп. Ленина, просп. Металлургов, ул. Чапаева
Проект планировки и проект межевания территории в г. Ялта
Проекты межевания территорий в г. Сочи
Проект планировки территории города Магнитогорска в районе площади "Привокзальная"
Документация по планировке территории с целью строительства 5-тиэтажных многоквартирных жилых домов в г. Белово
3 комплекта документации по планировке территории города Магнитогорска для установления красных линий
Проект планировки и проект межевания кварталов 37:08:050206, 37:08:050203 в г. Комсомольске
Проект планировки и проект межевания квартала усадебной и коттеджной застройки в поселке Летягино
Два проекта планировки и межевания в г. Сызрань
Документация по планировке территории, предназначенная для размещения объекта регионального значения: "Центр водных видов спорта"
Документация по планировке территории, расположенная в Переваловском сельском поселении
Два проекта планировки и межевания в г. Ростов-на-Дону
Проект планировки и проект межевания территории в г. Усть-Илимск
Проект планировки и межевания в Отрадовском с/с
Проект планировки и межевания в п. Наровчатка
Четыре проекта планировки и межевания в г. Муравленко
Два проекта планировки и межевания в г. Радужный
Проект планировки и межевания в Нижнем Новгороде
Проект планировки и межевания в п. Старая Майна
Три проекта планировки и межевания в г. Черногорск
Проект планировки и межевания в г. Барнаул
Проект планировки и межевания в с. Объячево
Проект планировки и межевания 14 и 15 микрорайона в г. Нефтекамск
Проект планировки территории в п. Крык-Пшак
Проект планировки и межевания в посёлке Наровчатка
Проект планировки и межевания в п. Новостройка
Проект планировки и межевания волоконно-оптической линии в г. Еманжелинск
Проект планировки и межевания территории в п. Фершампенуаз
Проекты планировки для Увельского района
Проекты планировки для Верхнеуральского района
Проекты планировки для г. Сатка
Проект планировки и межевания в с. Песчанокопское
Проект планировки и межевания в п. Матвеев Курган
Проект планировки и межевания в ст. Мелиховская
Проект планировки и межевания в г. Жигулевск
Проект планировки и межевания в с. Пальные
Проект планировки и межевания в с. Иванцево
Проект планировки и межевания в г. Кемерово
Проект планировки и межевания в с. Перемышль
Проект планировки и межевания в г. Волгодонск
Проект планировки в южной части г. Магнитогорска
Проект планировки в г. Курганинск
Проекты планировки для г. Учалы
Схема территориального планирования Тазовского района
Проект планировки и межевания в г. Губаха
Проект планировки и межевания территории в г. Кандалакша
Проект планировки и межевания в г. Далматово
Проект планировки и межевания в г. Томск с целью рекультивации
Проект планировки и межевания в г. Томск для размещения спортивного ядра
Проекты для Саткинского района
Проект планировки и межевания территории в г. Среднеуральске
Проекты планировки и межевания в Увельском районе
Проекты планировки и межевания в г. Салехард
Проект планировки и межевания территории МУСП "Плодопитомнический совхоз" в г.Стерлитамак
Проекты для Полетаевского сельского поселения
Проект планировки и межевания территории под жилую застройку на земельном массиве МЖС "Наримановская"
Проект планировки и межевания территории под жилую застройку на земельном массиве в с. Старокучергановка
Проект планировки и межевания территории бывшей станицы Красноярской в г. Волгодонск
Проект планировки и межевания территории жилого района "Юбилейный" в г. Каменск-Шахтинский
Проект планировки и межевания части территории свободной от застройки, расположенной в западной части хутора Красное Поле
Проект планировки и межевания части территории квартала жилых домов в д. Водопойка
Проект планировки и межевания части территории, расположенной в северной части с. Шарлык
Проект планировки и межевания линейного объекта ВОЛС в г. Еманжелинск
Проект планировки и межевания линейного объекта газопровода в Верхнеуральском районе
Проект планировки 132 мкр. в г. Магнитогорске
Проект планировки территории г. Магнитогорска в границах ул. Советская, граница ГПС "Южный"
Проект планировки и межевания в границах улиц Победы, Школенко в г.Еманжелинск
Проект планировки и проект межевания применительно к территории г. Туринска
Проект планировки и межевания территории Городищенского городского поселения
Проект планировки и межевания линейного объекта под водопровод в Первомайском районе г.Ижевска
Проект планировки и межевания в границах улиц Наумкина Гагарина в г.Магнитогорске
Проект планировки и межевания бывших поселков Радужный и Приуральский
Проект планировки и межевания в границах улиц Труда, Коробова, СНТ "Строитель-3", береговой зоны р. Урал
Проект планировки квартала жилой застройки усадебного типа в п. Нагайбакский
Проект планировки и межевания левобережной части г.Магнитогорска в границах ул. Московская, ш. Космонавтов
Проект планировки и межевания территории в границах ул. Труда, пр. Ленина, пер. Мурманский, ул. Кронштадская
Комплексный проект п. Светлый
Проект планировки и межевания в границах ул. Грязнова, пр. Ленина, ул. Правды, береговая зона р. Урал
Проект планировки и межевания территории восточнее садоводческого товарищества "Ремонтник"
Проект планировки и межевания в границах улиц Радужная, Калмыкова, Советская, Посадская
Комплексный проект п. Зеленая Долина
Комплексный проект для ур. Белый Хутор
Проект планировки и межевания п. Западный-3
Комплексный проект п. Западный-2
02.06.2023
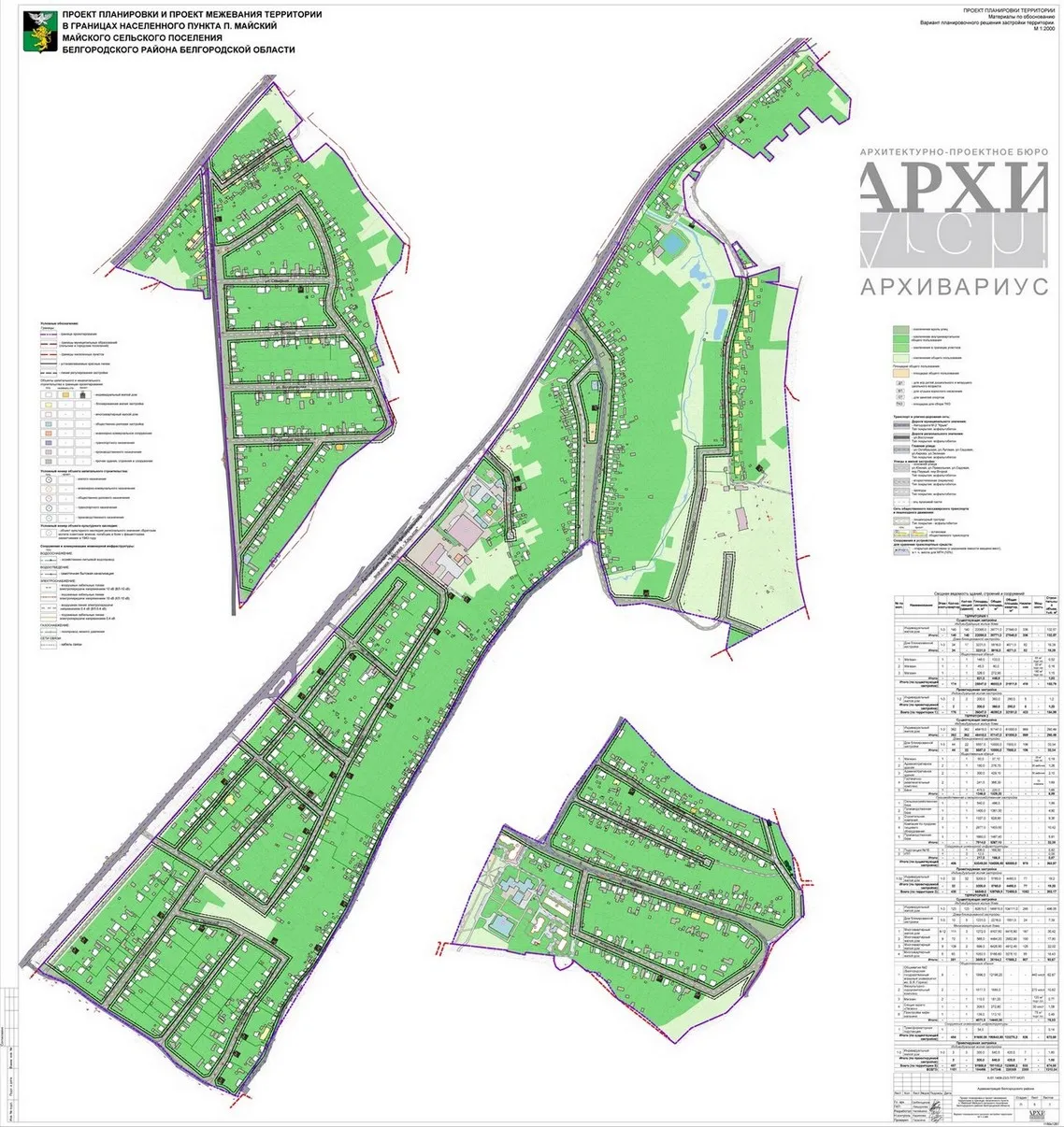
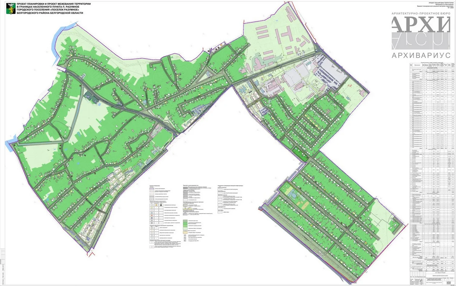
Три проекта планировки и межевания территории в границах Белгородского района Белгородской области были выполнены в 2023 г.:
- Проект планировки и проект межевания территории в границах населенного пункта п. Майский Майского сельского поселения Белгородского района Белгородской области.
- Проект планировки и проект межевания территории в границах населенного пункта п. Разумное городского поселения "Поселок Разумное" Белгородского района Белгородской области.
- Проект планировки и проект межевания территории в границах населенного пункта с. Нижний Ольшанец городского поселения "Поселок Разумное" Белгородского района Белгородской области.
В составе работ выполнялись инженерно-геодезические изыскания.