13.04.2023
Двенадцать проектов планировки и межевания территории в разных населенных пунктах городского округа Ялта Республики Крым были выполнены в 2023 г.:
- Проект межевания территории, расположенной по адресу: Республика Крым, городской округ Ялта, город Алупка, в районе улицы 1 Мая.
- Проект межевания территории, расположенной по адресу: Республика Крым, г. Ялта, ул. Богдановича, земельный участок 2К.
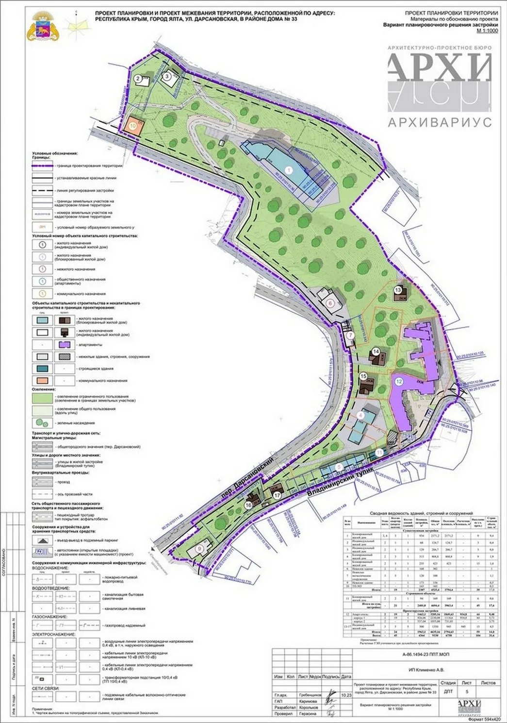
- Проект планировки и проект межевания территории, расположенной по адресу: Республика Крым, г. Ялта, ул. Дарсановская, в районе дома №33.
- Проект межевания территории, расположенной по адресу: Республика Крым, г. Ялта, переулок Дарсановский, 15а.
- Документация по планировке территории (проект планировки территории и проект межевания территории) с целью размещения объекта регионального значения "Территории перспективного развития комплексной жилой застройки в г. Ялта", расположенной по адресу: Республика Крым, г.о. Ялта, ул. Коммунаров, в границах земельных участков с кадастровыми номерами 90:25:010123:806, 90:25:010123:539.
- Внесение изменений в проект планировки и проект межевания территории, расположенной по адресу: республика Крым, г. Ялта, пгх Краснокаменка, в районе пер. Фрунзе.
- Документация по планировке территории (проект планировки территории с проектом межевания территории) объекта торговли, расположенного по адресу: Республика Крым, г. Ялта, пгт. Виноградное, пер. Курчатова, в районе дома № 9.
- Проект планировки и проект межевания территории, распложенной по адресу: Республика Крым, городской округ Ялта, город Алупка, в районе дома № 29 по ул. Ленина.
- Проект планировки и проект межевания территории, в районе ул. Мухина, пгт. Массандра, г. Ялта, Республики Крым.
- Проект межевания территории, распложенной по адресу: Республика Крым, г. Ялта, пгт. Виноградное, район Могаби-2.
- Проект межевания территории, распложенной по адресу: Республика Крым, г. Ялта, город Алупка, в районе переулка Приморский.
- Проект межевания территории, распложенной по адресу: Республика Крым, г. Ялта, пгт Санаторное.